DVOETAŽNA KUĆA S POGLEDOM NA MORE - ŽDRELAC, OTOK PAŠMAN
Opis
Na mirnoj lokaciji u Ždrelcu na otoku Pašmanu, svega 140 metara od mora i uređenih plaža, smjestila se lijepa obiteljska kuća sa dvije potpuno odvojene stambene jedinice, garažom i dodatnim potkrovnim prostorom.
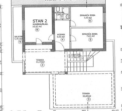
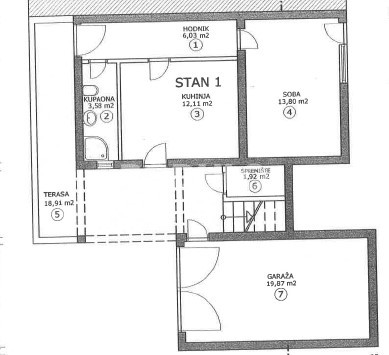
Kuća se nalazi na parceli površine 172 m², a sastoji se od prizemlja i kata, s praktično odvojenim ulazima. U prizemlju se nalazi jednosobni stan površine cca 40 m², koji se sastoji od spavaće sobe, kupaonice te manje kuhinje i dnevnog boravka s izlazom na terasu i dvorište, dok kat obuhvaća dvosobni stan površine cca 40 m² s prostranom djelomično natkrivenom terasom površine oko 45 m², s pogledom na more i okolni krajolik. Na ovu terasu se nadovezuje vanjsko stubište koje vodi, na još jednu, krovnu terasu površine 12 m², s koje se otvara izuzetan panoramski pogled na more, Pašmanski most koji povezuje otoke Pašman i Ugljan, te samo mjesto Ždrelac.
Sve su terase orijentirane prema sjeveroistoku, što ih čini idealnim mjestom za boravak i druženje tijekom vrućih ljetnih dana, budući da pružaju prirodan hlad i ugodnu atmosferu. A zahvaljujući njihovoj prostranosti, svatko može pronaći kutak za privatnost i potpuni odmor.
Unutrašnjost kuće uređena je jednostavno i funkcionalno, s naglaskom na udobnost i boravak na otvorenom. Kuća je okružena mediteranskim zelenilom i mirnim susjedstvom, što stvara autentičan otočni ugođaj – savršen za sve koji traže mir, blizinu mora i općenitu kvalitetu života u jednom od najugodnijih dijelova otoka Pašmana.
Kuća još posjeduje garažu površine 19,8 m² te parkirno mjesto, dok se u neuređenom potkrovlju pruža mogućnost uređenja – idealno za spremište, radionicu ili manji stambeni prostor (galeriju).
Ždrelac je slikovito naselje smješteno na spoju otoka Pašmana i Ugljana, poznato po bistrini mora, mirnim uvalama i autentičnom mediteranskom ambijentu. Zbog svoje blizine kopnu (mostom je povezan s otokom Ugljanom i trajektnim linijama Preko-Zadar i Tkon-Biograd), predstavlja izvrsno mjesto za obiteljski život, vikendicu ili turističko ulaganje.
Ostale informacije
- Šifra objekta: 1376
- Tip: Kuća
- Mjesto: Ždrelac, otok Pašman
- Naselje: Gladuša, Ždrelac
- Površina: 80.00 m2
- Površina zemljišta: 172.00 m2
- Novogradnja: -
- God. izgradnje: 2000.
- Br. etaža: 2
- Kat: 1
- Br.spavaćih soba: 0
- Terasa / loggia: +
- Udaljenost od mora: 140
- Pogled na more: +
- Parking: +
- Garaža: +
- Vlasništvo: 1/1
- Grijanje: klimatizirano
- Komunalije: gradski vodovod
- Dozvole: vlasnički list, građevinska dozvola, uporabna dozvola
- Energetski certifikat: -
- Ukupna cijena: 248.000,00 €

