Opis
Projekt luksuzne moderne vile čija je ukupna građevinska bruto površina 367 m², osmišljen je kako bi u potpunosti spojio suvremeni arhitektonski izričaj s prirodnim ambijentom otoka Premude. Vila je smještena na zemljištu površine 925 m², a arhitektura vile karakterizirana je čistim linijama i velikim staklenim površinama koje omogućuju obilje prirodnog svjetla te kontinuiranu povezanost interijera i vanjskog prostora.
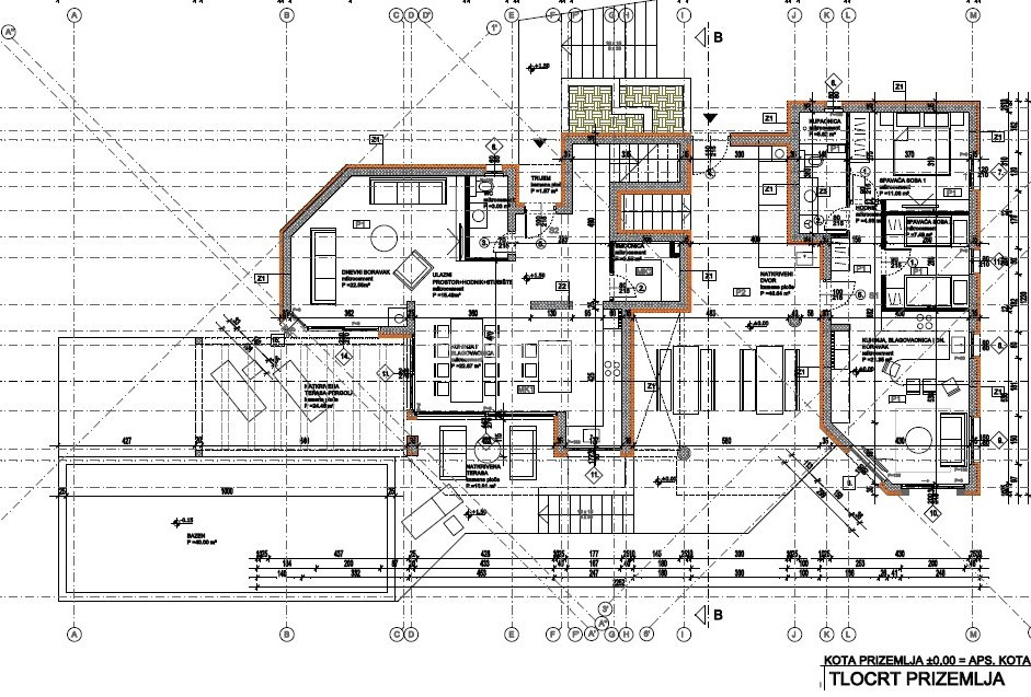
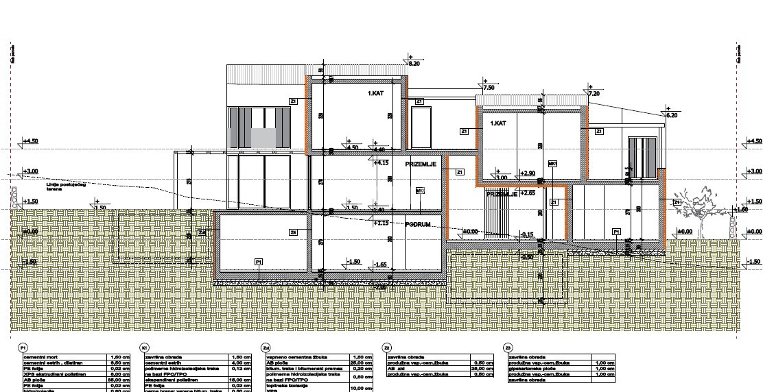
Koncept vile raspoređen je na 3 etaže, sastoji se od podruma, prizemlja i kata, s naglaskom na funkcionalnost, prostranost i visoku razinu privatnosti, s pažljivo organiziranim rasporedom prostorija. Prizemlje bruto površine 152 m² podijeljeno je u dvije odvojene stambene jedinice, iako se cijela vila može koristiti kao jedna cjelina. Prva stambena jedinica bruto površine 88m2 u prizemlju, zamišljena je kao elegantan otvoreni koncept koji objedinjuje prostrani dnevni boravak, kuhinju i blagovaonicu, a tu su još gostinjski WC i ostava. Unutarnjim stubištem povezana je s 1. katom gdje se nalaze 4 spavaće sobe, svaka s vlastitom kupaonicom te izlazom na natkrivenu ili otvorenu terasu, koje su idealne za opuštanje i uživanje u zalasku sunca. Na istoj etaži nalaze se i dvije dodatne spreme (garderoba i vešeraj). Bruto površina kata iznosi 170 m2.
Druga stambena jedinica u prizemlju površine je 63m2 i sastoji se od kuhinje, dnevnog boravka, dvije spavaće sobe i kupaonice. Ovakav raspored prostora pruža dodatnu neovisnost i predstavlja izvrsno rješenje za udoban smještaj gostiju i prijatelja.
Tu je još podrum površine 86 m2, odnosno bruto površine 43 m2, namijenjen je tehničkim i dodatnim sadržajima koji upotpunjuju udobnost boravka.
Vanjski prostor oblikovan je kao zona potpunog opuštanja s bazenom površine 47m2 (koji se zimi koristi kao zatvoreni bazen), sunčalištem i elegantnom pergolom koja stvara ugodnu hladovinu i prostor za druženje. Položaj na uzvisini osigurava mir, privatnost i lijepe vizure prema prirodi i moru. Od plaže udaljen je cca 500 m.
Budući objekt idealan je za privatnu luksuznu vilu ali i za poslovnu investiciju s izraženim potencijalom povrata ulaganja. Zahvaljujući svojoj organiziranosti i funkcionalnosti ima mogućnost korištenja i kao ugostiteljski objekt prigodan za organizirane ručkova, raznih evenata, manjih internacionalnih vjenčanja, a sve to uz osiguran smještaj za goste.
Napomena: Budućem vlasniku u ovoj fazi pruža se mogućnost kupnje samog zemljišta s projektom ili kupnje potpuno izgrađene i dovršene vile s prilagodbom i usklađenjem projekta prema vlastitim željama i potrebama.
Link na ponudu za zemljište: https://www.bodulo-realestate.hr/hr/248-za-prodaju-gradjevinski-teren-premuda--otok-premuda-925-00m2-zadarski-otoci/
Ostale informacije
- Šifra objekta: 10015
- Tip: Vila
- Mjesto: Premuda, otok Premuda
- Naselje:
- Površina: 367.00 m2
- Površina zemljišta: 925.00 m2
- Novogradnja: -
- God. izgradnje:
- Br. etaža: 3
- Kat: 1
- Br.spavaćih soba: 2
- Terasa / loggia: +
- Udaljenost od mora: 500
- Pogled na more: +
- Parking: +
- Garaža: -
- Vlasništvo: 1/1
- Grijanje:
- Komunalije:
- Dozvole: vlasnički list, građevinska dozvola
- Energetski certifikat: -
- Ukupna cijena: na upit

